新标准下的防排烟设计与实物图
1、敞开楼梯间与走道之间的电动挡烟垂壁


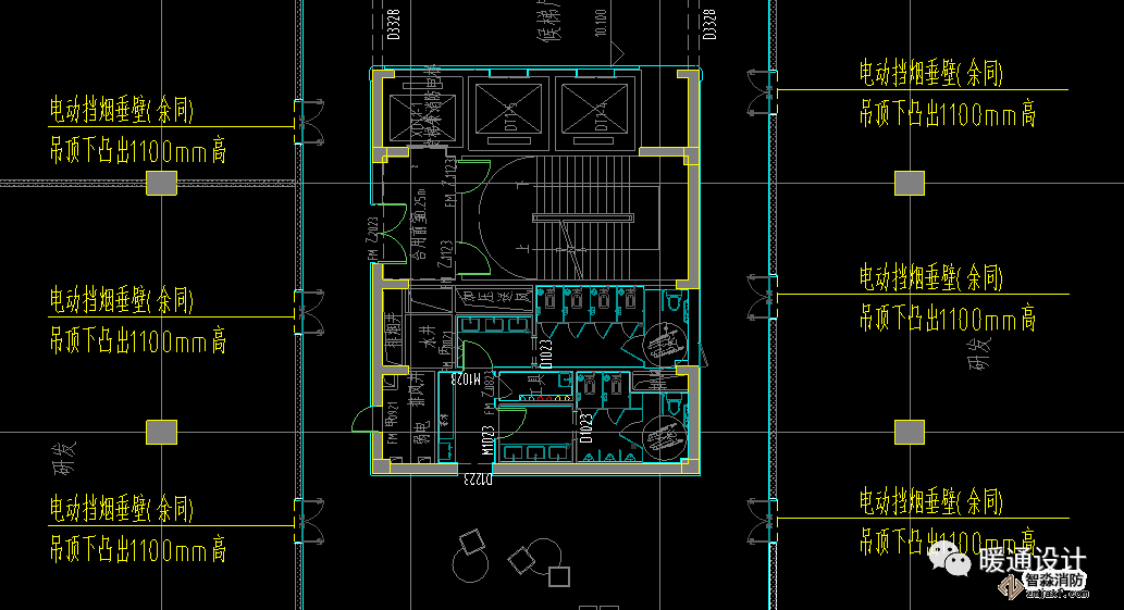
2、储烟仓内有部分门洞,设置电动挡烟垂壁


3、排烟天窗与周边开口之间的防火措施



4、教室内的高位窗设置手动开启装置

5、走道处的挡烟垂壁,活动式和固定式


6、风雨操场排烟天窗及手动开启装置



江苏苏州智淼消防安装工程公司主营:北京消防施工安装,消防工程设计,消防维修改造,消防设备检测,消防验收代办,消防维修保养,探测器清洗,消防检测设备,智慧消防物联网,消防设备销售安装及调试为一体的正规化消防企业。消防改造网址:http://www.zmjaxf.com/;服务热线:4006-598-119








苏公网安备32058102002151号